Hagenheim
Sanierung Pfarrkirche
Sanierung der Pfarrkirche „Maria Rosenkranzkönigin“ Hagenheim
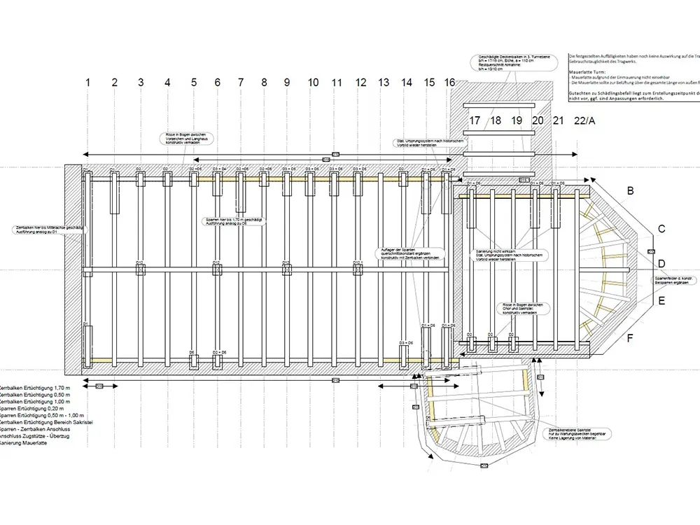
Die vorliegende Pfarrkirche stammt im Kern aus der Spätgotik um 1500. Um ca. 1728 erfolgte eine Neufassung der Kirche mit umfangreichen Stuckarbeiten und den Annexbauten wie Sakristei, Kanzelaufgang, Vorzeichen und Kapelle. Bei dem vorliegenden Bauwerk wurde während einem denkmalpflegerischen Vorprojekt ein erheblicher Sanierungsbedarf des Dachtragwerkes festgestellt. Die Schäden erstrecken sich vom Langhaus über die Sakristei bis zum Chor. Es wurde eine denkmalpflegerische Sanierungsplanung des historischen Dachstuhles vorgenommen. Hierbei wurden diverse unterschiedliche Sanierungsdetails ausgearbeitet.
Bei der historischen Dachkonstruktion handelt es sich um ein Sparrendach mit Zerr-, Kehl- und Hahnenbalkenlage. In der Mittelachse liegt über der Zerrbalkenlage ein Überzug, welcher die Last in den Binderachsen in Zughölzer einleitet. Die Anschlüsse Zerrbalken-Überzug, sowie Überzug-Zugholz wurde im Rahmen einer Sanierungsmaßnahme durch Stahlkonstruktionen verstärkt. Im historischen Bestand hat sich die Last in den Zugstützen zwischen den vorhandenen Steigbändern und über die Anschlüsse an Kehl- und Hahnenbalken in die Sparren als Sprengwerk verteilt. Große Schädigung durch holzzerstörende Pilze wurde an den Auflagerpunkten zwischen Zerrbalken und Sparren vorgefunden. Dieser Anschluss wurden durch einen querschnittskonstanten Balkentausch mit stehendem Blatt ergänzt.
Die Mauerlatte, auf der das Dachtragwerk die Horizontal- und Vertikallasten in die Mauerkrone einleitet, mussten abschnittsweise mittels Schraubpressklebung ausgetauscht werden.
Unsere Aufgabe war die tragwerksplanerische Begleitung des Projektes von der Genehmigungsplanung bis zur Ausführung.
Projektdetails
Art
Sanierung Kirche
Konstruktion
Holzbau
Bauort
Hagenheim
Baufirma
Holzbau Butscher
88316 Isny-Rohrdorf
Sebastian Decker Bauunternehmung GmbH
81285 München
Bauherr
Bistum Augsburg
Architektur
Müller-Hahl & Becherer Architekten PartGmbB
bureau für architektur
Leistung
Tragwerksplanung Leistungsphase 4-6, 8














